43616 Carradoc Farm Ter

Description


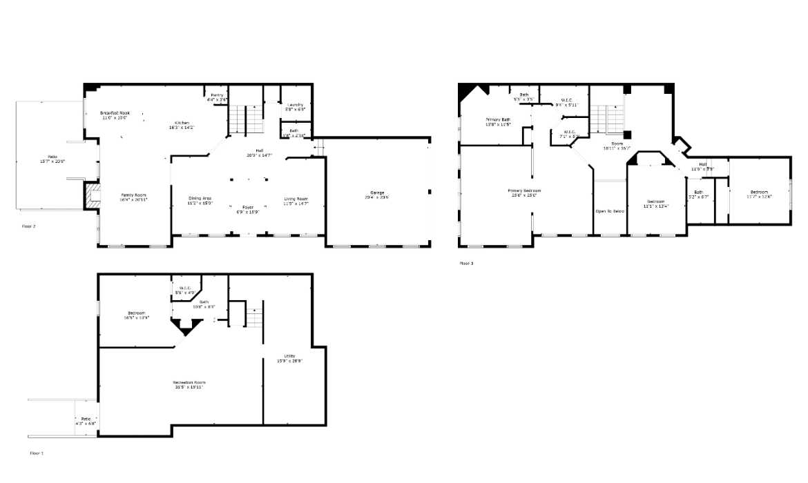
Premium Lansdowne Living! Located in sought-after Lansdowne on the Potomac, this luxury patio home lives like a single-family residence with exceptional space, privacy, and unbeatable location. Arriving on tree-lined streets, a stately brick exterior with plantation shutters and a two-stall garage welcomes you home. This property’s desirable end-unit position faces generous common area, complete with a fenced backyard and airy, open-concept interiors designed for entertaining and everyday relaxation. Inside, an impressive two-story foyer opens to light-filled living and formal dining rooms, with beautiful updated hardwood floors and a powder room. Graceful archways flow into your open-concept family room and kitchen, where home chefs will appreciate the extensive granite countertops, cabinet and pantry storage, and recessed lighting. A center island and bar countertop open to the eat-in dining space provide natural spaces for casual bites and conversation. Gather around the family room fireplace, or transition directly outside to play, grill, and savor the sunshine in your fenced yard and brick paver patio backing to verdant woods. Upstairs, escape to your palatial primary suite featuring two walk-in closets and its own private sitting room retreat. The primary bathroom welcomes tranquil treetop views from a large corner tub, along with double vanities and a separate shower. Two additional upstairs bedrooms share a full hall bathroom, and the landing is perfect for an office or reading nook. On the lower level, you’ll find even more finished, sunlit space with endless possibilities. The expansive rec room features recessed lighting, durable LVP flooring and a French-door walk-up to the yard, with a third full bath and bonus room/fourth bedroom option creating a secluded downstairs suite. All located in a sought-after community close to schools and all of Lansdowne’s amenities, including indoor and outdoor pools, fitness center, playgrounds, sport courts, business center, ballroom, and meeting rooms. Enjoy easy access to Route 7 and nearby shopping and dining at Lansdowne Town Center, along with close proximity to the Lansdowne Resort & Spa, the Golf Club at Lansdowne, One Loudoun, hiking trails at Elizabeth Mills Riverfront Park, and other local attractions. This property offers not only exceptional space and comfort but also the convenience and community lifestyle that makes this one of northern Virginia’s most desirable neighborhoods. Welcome home!


NEIGHBORHOOD

The Right Realtor Makes All the Difference

Buying or selling in Loudoun County? Jean Garrell is one of Northern Virginia’s top real estate professionals, trusted by hundreds of local homeowners for her strategy, service, and results.If you’re serious about your next move, it’s time to connect.

team photo sep 25